Descripción
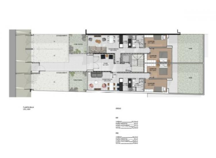
MEMORIA DESCRIPTIVA doit.flores 11|#||#|Para vivir o invertir en unos de los barrios emblemáticos de Salto, ubicado sobre calle Zorrilla a metros de Plaza Flores.|#|El edificio se desarrolla en cuatro niveles, todos con acceso por escalera y ascensor.|#||#|PLANTA BAJA|#|Acceso con tres cocheras, hall recibidor y dos apartamentos de dos dormitorios con patio frontal y posterior.|#||#|NIVELES 1,2 y 3:|#|Cada uno cuenta con dos apartamentos de dos dormitorios, con balcón y lavadero hacia el frente..|#||#|ESTRUCTURA|#|Hormigón armado.|#||#|PAREDES|#|Al exterior cuenta con doble muro de ticholo revocado con lana de vidrio como aislación térmica.|#|Al interior serán de ticholo revocado y terminadas finamente con enduído pintado.|#|Cocinas y baños se revestirán con porcelanato.|#||#|CIELORRASOS|#|En baños y cocinas serán de yeso terminados finamente con enduído. En el resto de locales será losa de hormigón armado terminada con enduído pintado.|#||#|PISOS|#|Los estares, comedores, cocinas y baños contarán con pisos de porcelanato de 1ra calidad,mientras que los dormitorios llevarán piso flotante de alto tránsito símil madera.|#| |#|ACCESO|#|Puerta metálica de acceso peatonal y puerta blindex de acceso al hall. Portones metálicos manuales de acceso vehicular.|#||#|ABERTURAS|#|Puertas interiores y de acceso en madera.|#|Las ventanas serán corredizas en aluminio color negro.|#|Los dormitorios llevaran cortinas de enrollar de aluminio con alma de poliuretano.|#||#|SISTEMAS E INSTALACIONES DE UNIDADES|#|Luminarias LEO de embutir en todos los ambientes Canalizaciones de TV cable en living comedor.|#|Intercomunicador con el acceso.|#|Previsión para la instalación de equipo Split en todos los ambientes habitables.|#||#|INSTALACIONES SANITARIAS|#|Instalación para agua caliente y fría con cañería termofusión y desagües en PVC y/o polipropileno.|#|Previsión para lavarropas.|#||#|PINTURA|#|En el interior de los apartamentos serán pintados con dos manos de pin tura látex interior de primera calidad.|#|En cielorrasos pintura para cielorrasos anti hongos.|#||#|COCINAS|#|Mesada de granito seleccionado y finas terminaciones. Pileta de acero inoxidable con mezcladora monocomando. Muebles bajo mesada ejecutados en melamínico.|#||#|BAÑOS|#|Aparatos sanitarios y griferías monocomando. Lavatorio con mueble integrado.|#|




